Wohnüberbauung Vogelsang, Wetzikon

Dachtler Partner Architekten

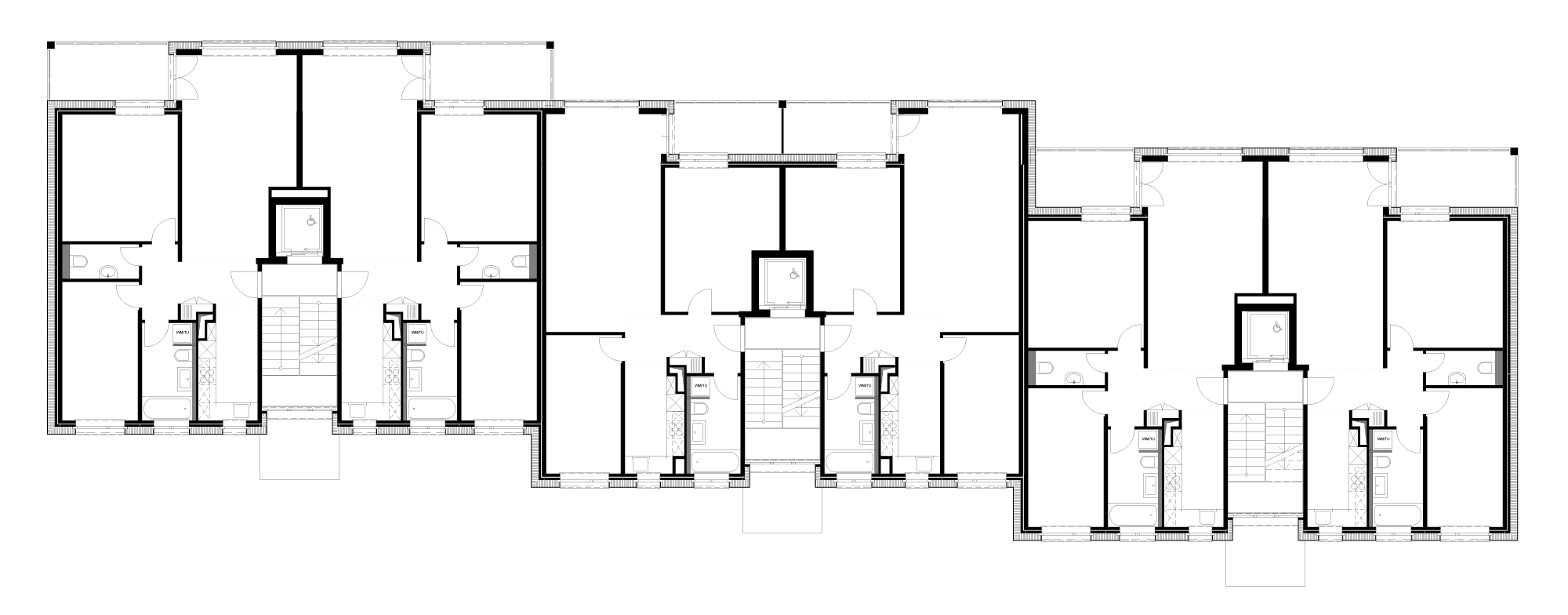
Die Modernisierung des Areals gliedert sich in drei Bereiche mit zwölf bestehenden Mehrfamilienhäusern. Die Gebäude – mehrheitlich Göhner Bauten – werden in ihrer Volumetrie zu Gunsten der heutigen Wohnbedürfnisse erweitert und aufgestockt. Ein differenziertes Farbkonzept und ein Fassadengrid, eine Ableitung der Göhner-Tektonik, dienen als verbindende Elemente. Balkonkonstruktionen weben sich in das Grid ein und die Putzoberflächen erfahren eine unterschiedliche Ausarbeitung in Struktur und Farbe.

Auftraggeber
Implenia Schweiz AG, Zürich
Aufgabe
Modernisierung Wohnüberbauung
Auftragsart / Bauzeit
Direktauftrag / 2016-2019
Konstruktion
Plattenbau, Massivbau
Mitarbeit
Sara Caderas, Gino Giordano, Julia Hinsch, Daniel Meier, Roberto Pelizzari, Florian Ramseier
Projektpartner
Andreas Geser Landschaftsarchitekten, WKP Bauingenieure, Daniel Sutter Fotografie

Projektinformation (PDF)

Durch die weitere Nutzung der Website erklären Sie sich mit der Verwendung von Cookies einverstanden. Weitere Informationen hierzu finden Sie in unserer Datenschutzrichtlinie.