Wohnüberbauung Lettenstrasse, Winterthur

Dachtler Partner Architekten

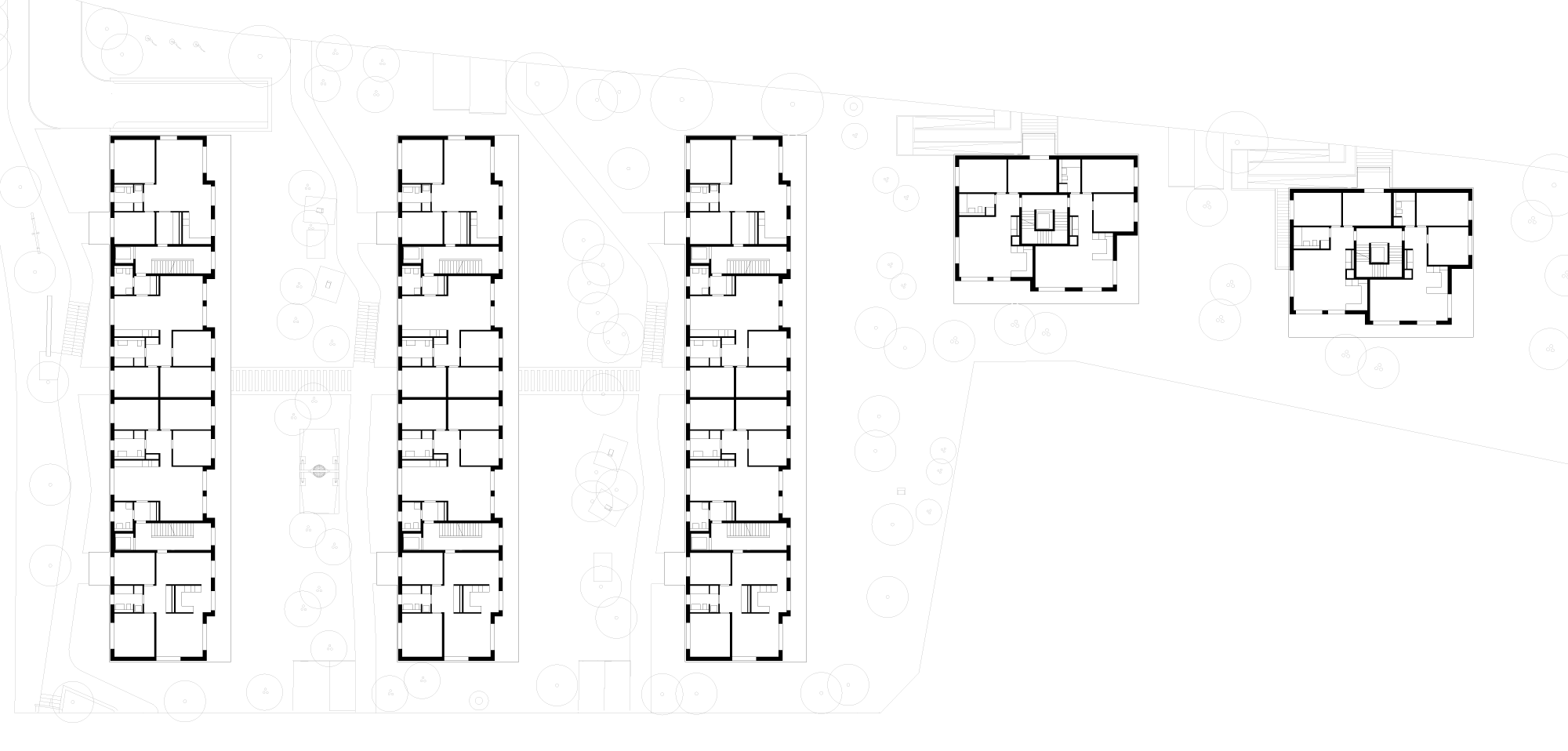
Das Wohnquartier Oberfeld in Winterthur weist einen hohen Anteil an Freiräumen auf. Trotz innerer Verdichtung wird die vorhandene Qualität im Aussenraum aufrechterhalten. Die grosszügigen Abstände zwischen den Gebäuden sorgen für unverbaute Durchblicke, trotz angemessener Dichte. Durch den Kontrast aus reduzierter Gebäudevolumetrie und bewegter Topografie entsteht eine reizvolle Überbauung, die den Massstab des Quartiers aufnimmt.

Auftraggeber
AXA Leben AG, Zürich
Aufgabe
Neubau 54 Mietwohnungen
Auftragsart
Direktauftrag
Konstrukion
Holz-Betonbau, 2000 Watt
Mitarbeit
Lorenz Bettschen, Zsofia Glatz, Daniel Meier, Roberto Pelizzari, Christoph Rümbeli, Manuel Weber
Projektbeteiligte
Daniel Sutter Fotografie

Projektinformation (PDF)

Durch die weitere Nutzung der Website erklären Sie sich mit der Verwendung von Cookies einverstanden. Weitere Informationen hierzu finden Sie in unserer Datenschutzrichtlinie.