Wohn- und Gewerbeüberbauung Sihlbogen, Zürich

Dachtler Partner Architekten

Die frühere Bedeutung der Sihl für die Industrie zeigt sich noch heute in der Abfolge der einzelnen Areale: Auf die Hürlimann-Brauerei folgt die Sihl Papierfabrik, danach Manegg usw. Auch die beiden Grundstücke an der Ortseinfahrt zu Leimbach gehören der Reihe neuer, durch Industrie und Fluss geprägter Wohn- und Gewerbebauten an.

Im grösseren städteräumlichen Zusammenhang spricht das bauliche Konzept für grosse Massstäbe und gegen eine Fortführung der kleinteiligen Leimbacher Dorfstruktur. Die Überbauung akzentuiert das dörfliche Gefüge, indem sie den Zentrumscharakter fördert, der hier entstehen wird.

Auf Baufeld A wird das „Haus auf dem Platz“ thematisiert, dessen einheitliche Fassaden Allseitigkeit herstellen. Das Gebäude versteht sich als Solitär, der bewusst auf die Einhaltung der Strassenkanten verzichtet und sein eigenes Umfeld mitbringt: ein steinerner Platz, der durch wechselnde Märkte und kulturelle Ereignisse frequentiert wird.

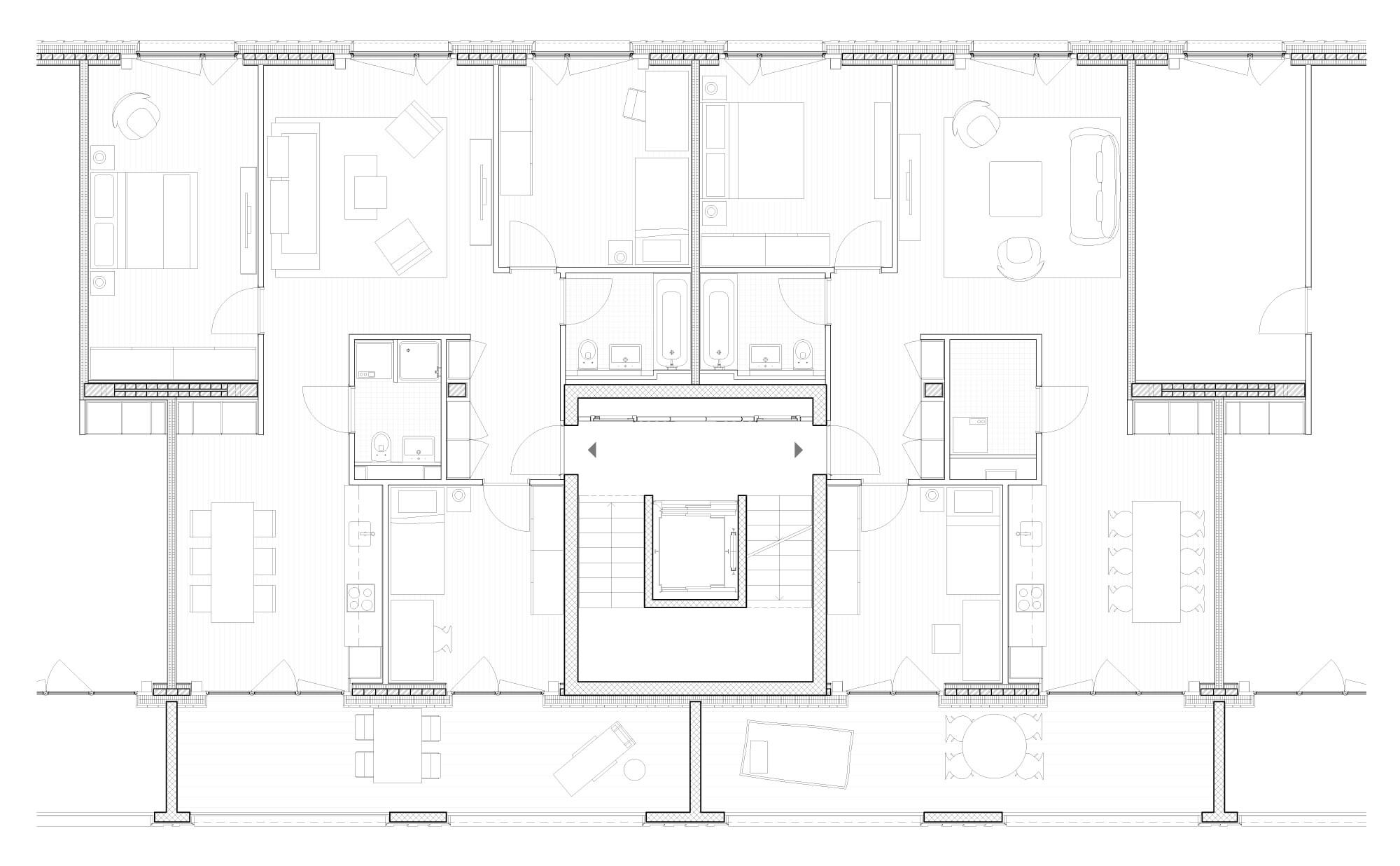
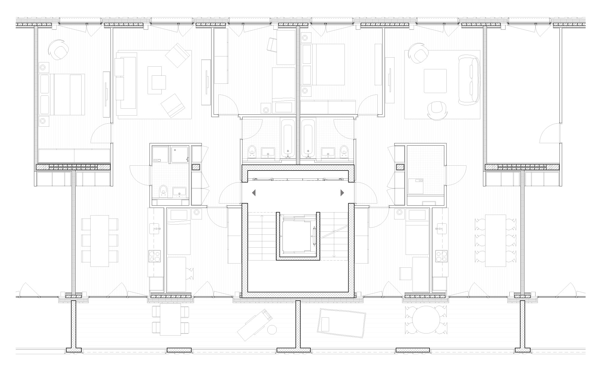
Im Gegensatz dazu sind die beiden Baukörper auf Areal B zweiseitig ausgerichtet und treten mit dem jeweiligen Vis-à-vis in einen Dialog. Zu S-Bahn und Strasse hin sorgen die grosszügigen Loggien für die nötige Distanz. Auf der Sihlseite spiegeln die zu vertikalen Reihen geordneten Fenster den Wald. Sie unterstreichen den Naturbezug und die Beschaulichkeit jener von Leimbach abgewandten Seite. Am Abend ersetzt ein Mosaik individueller Wohnfenster das kollektive Bild.

Auftraggeber
Baugenossenschaft Zurlinden, Zürich
Aufgabe
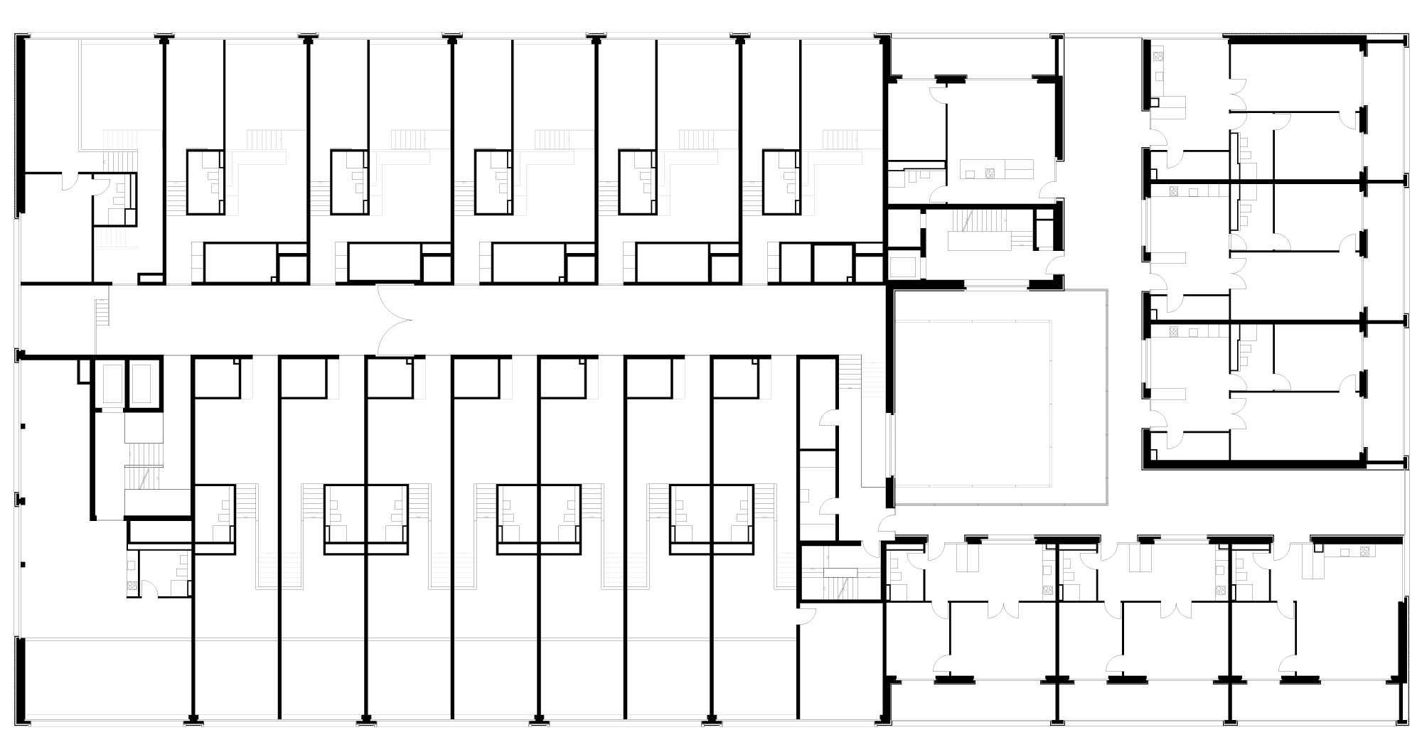
Neubau 219 Mietwohnungen, 2‘690 m2 Gewerbefläche
Auftragsart
Wettbewerb, 1. Rang
Konstrukion
Holz-Betonbau / 2000 Watt Areal
Mitarbeit
Roberto Pelizzari, Domenik Prandini, Florian Ramseier, Lukas Schek, Dave Stazione, Oliver Strebel, Micha Vogt
Projektpartner
Caretta+Weidmann Baumanagement, SJB Kempter Fitze Bauingenieure, Henauer Gugler Bauingenieure, Raymond Vogel Landschaften, Daniel Sutter Fotografie, Benjamin Hofer Fotografie

Projektinformation (PDF)

Durch die weitere Nutzung der Website erklären Sie sich mit der Verwendung von Cookies einverstanden. Weitere Informationen hierzu finden Sie in unserer Datenschutzrichtlinie.