Siewerdtstrasse, Zürich

Dachtler Partner Architekten

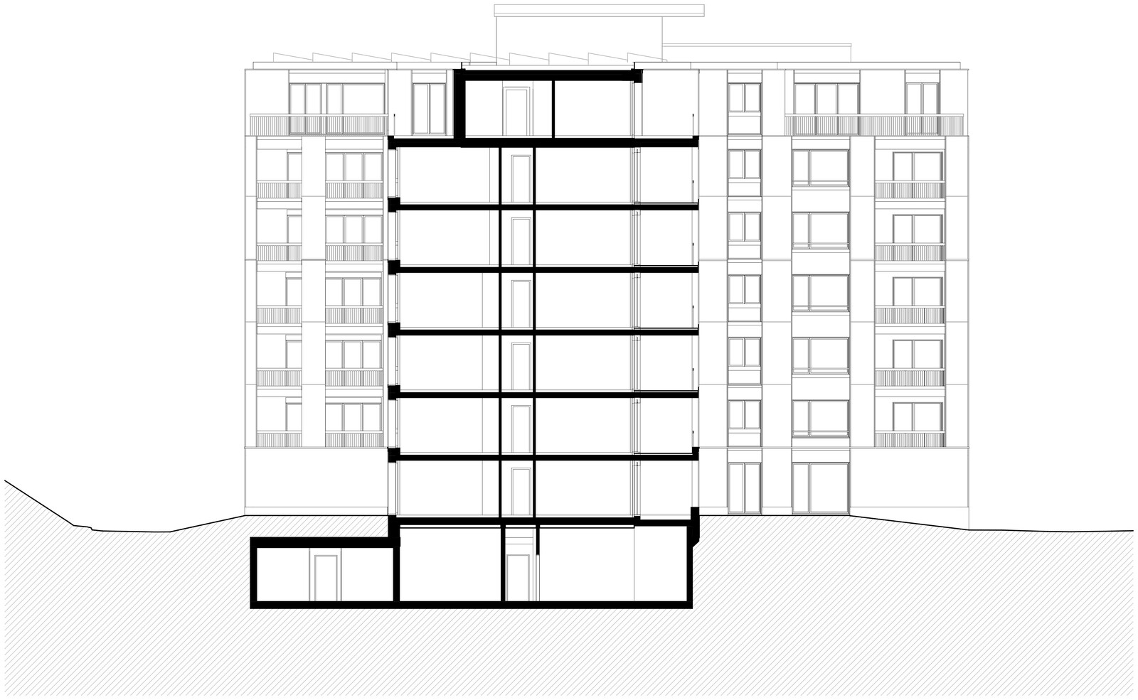
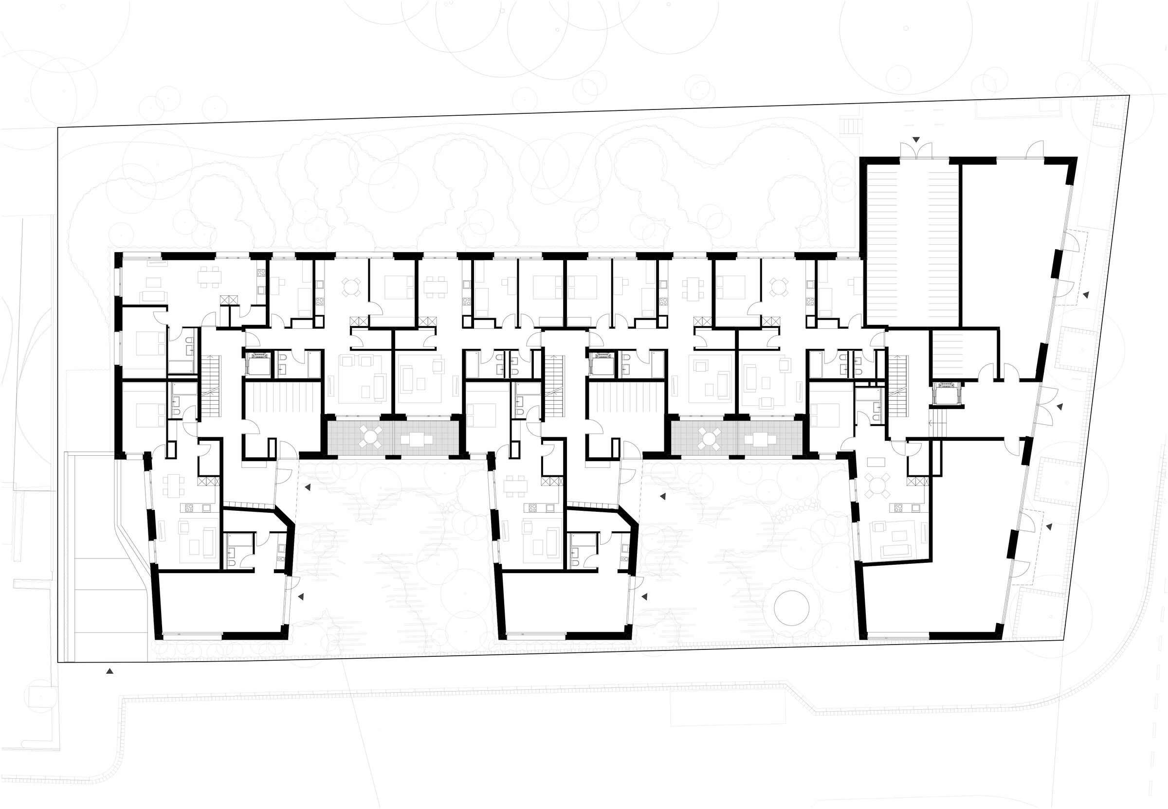
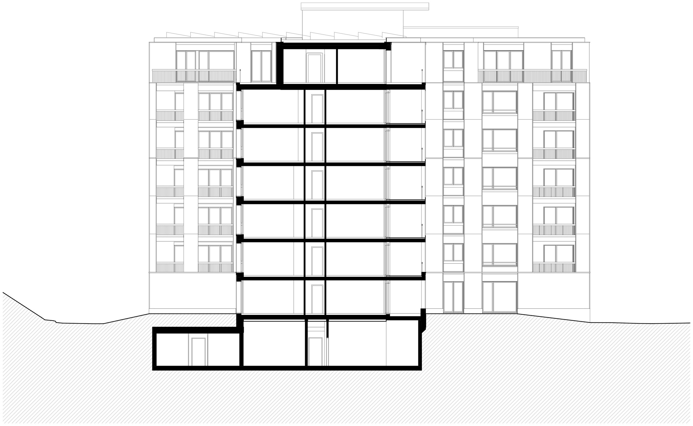
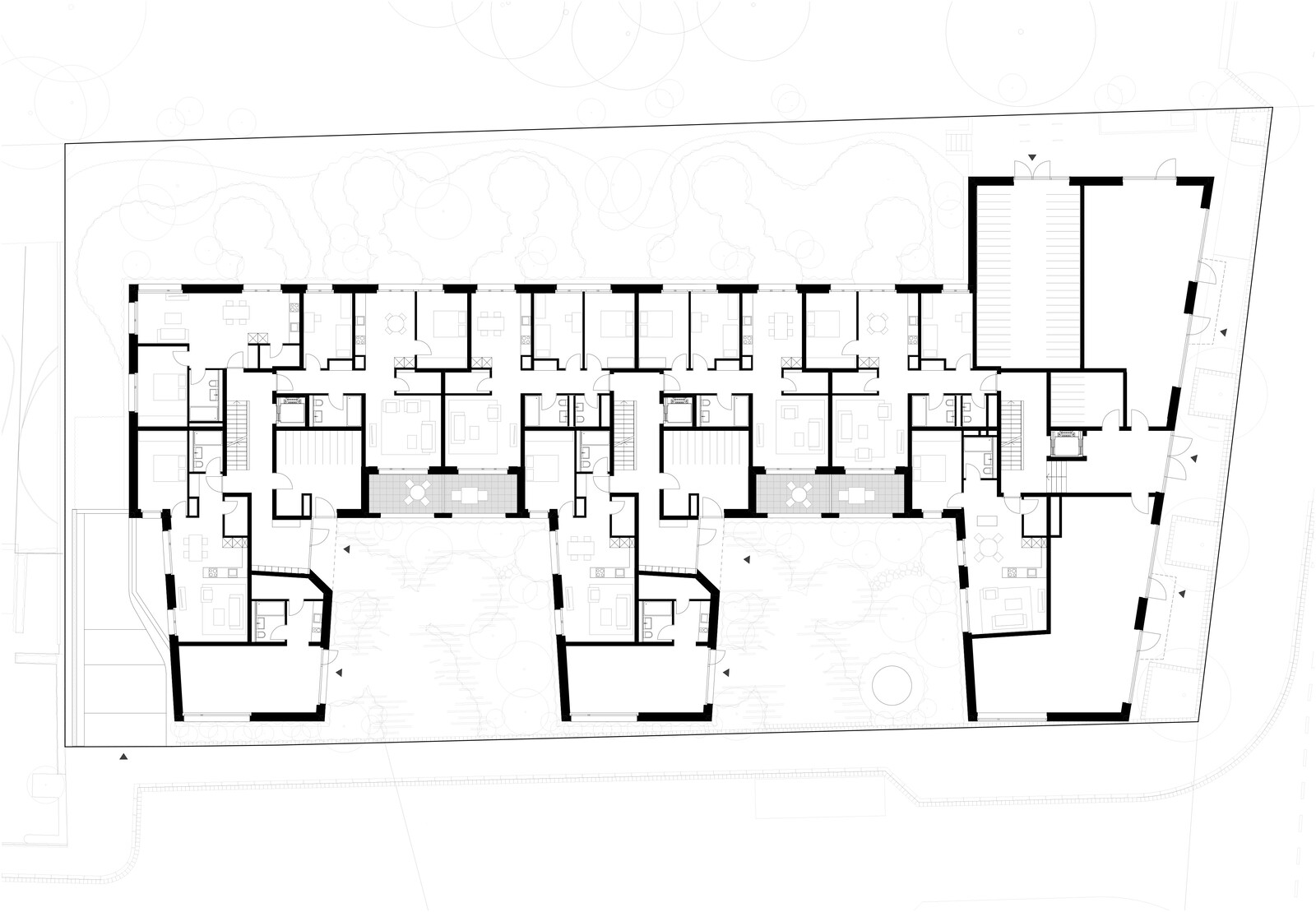
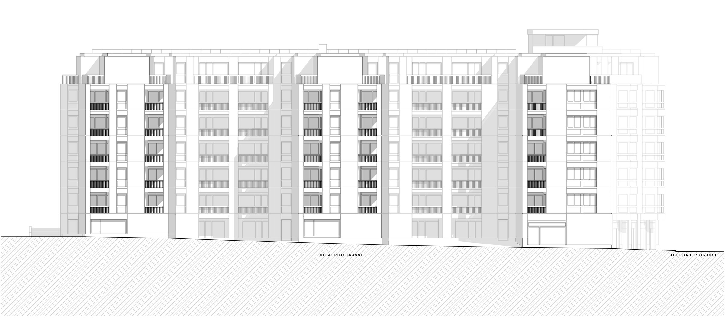
In Sichtweite das Hallenstadion und in kurzläufiger Distanz das bunte Angebot der Stadt. Das Umfeld zeugt von der dynamischen Entwicklung Oerlikons, weg von der Aglo, hin zum gut durchmischten Stadtquartier. Das gebaute Umfeld ist heterogen, der Städtebau noch offen. So sind es andere Gegebenheiten, die dieses Haus definieren. Der Lärm der Strasse, die Sonne im Süden, die Bahn im Norden, die hohen Ausnützung gepaart mit dem Wunsch nach einem ökonomischen Gebäude. Mit einer kammartigen Struktur wird den unterschiedlichen Anforderungen entsprochen. Die Erschliessung ist effizient auf drei Treppenhäuser verteilt. Die vor- und zurückspringende Fassadenflucht schafft Distanz zur Strasse und bringt Privatheit und Ruhe in die Vorzone.

Auftraggeber
Mobimo AG, Küssnacht
Aufgabe
Neubau 69 Wohnungen
Auftragsart
Studienauftrag, 1. Rang
Mitarbeit
Ricardo Guimaraes, Julia Hinsch, Florian Ramseier, Oliver Strebel, Micha Vogt
Projektpartner
Andreas Geser Landschaftsarchitektur, wlw Bauingenieure, Lemon Consult Nachhaltigkeit, HTR Haustechnik, Visualtonic Visualisierungen

Projektinformation (PDF)

Durch die weitere Nutzung der Website erklären Sie sich mit der Verwendung von Cookies einverstanden. Weitere Informationen hierzu finden Sie in unserer Datenschutzrichtlinie.