Hotel Stampfenbachstrasse, Zürich

Dachtler Partner Architekten

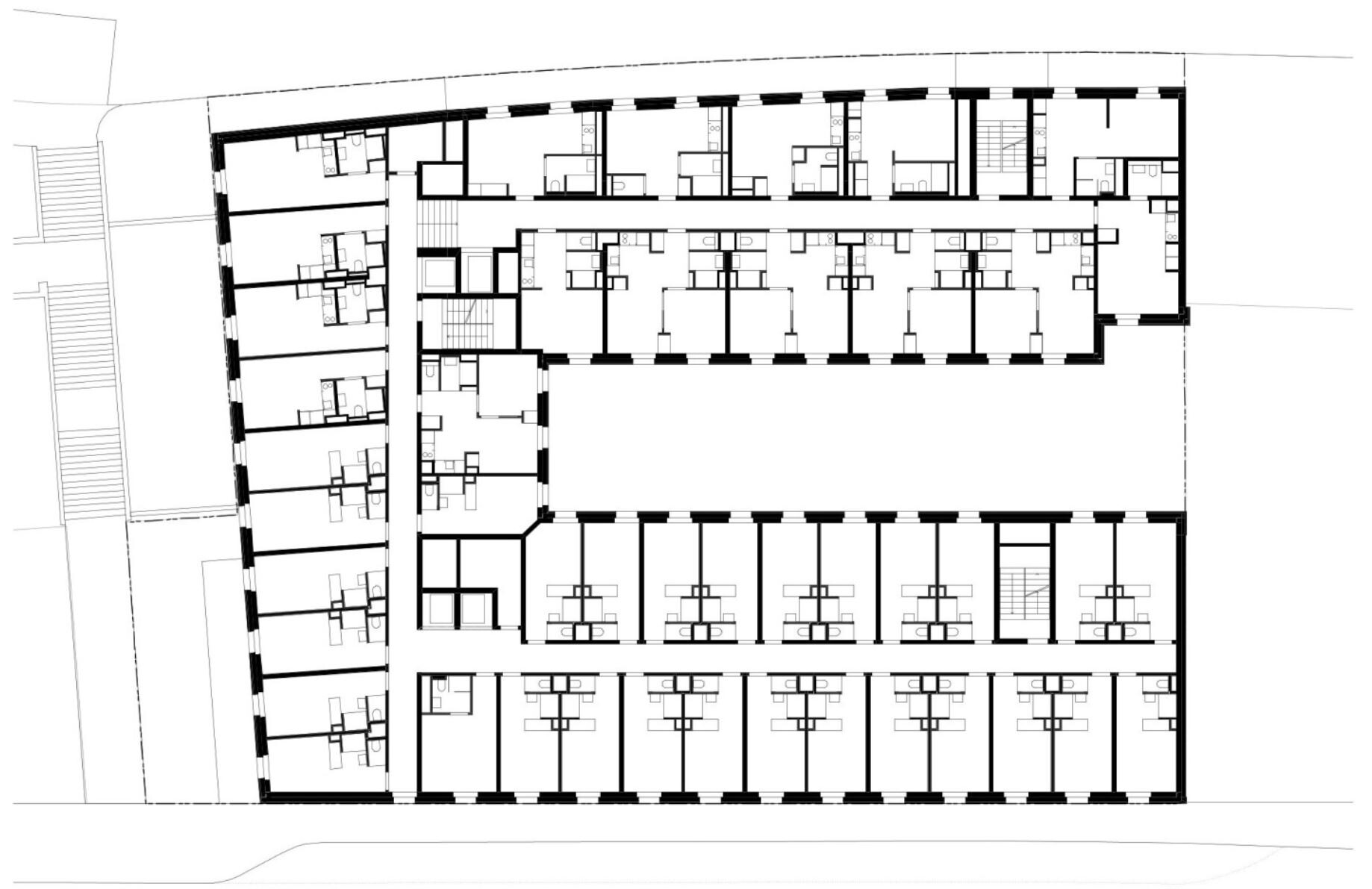
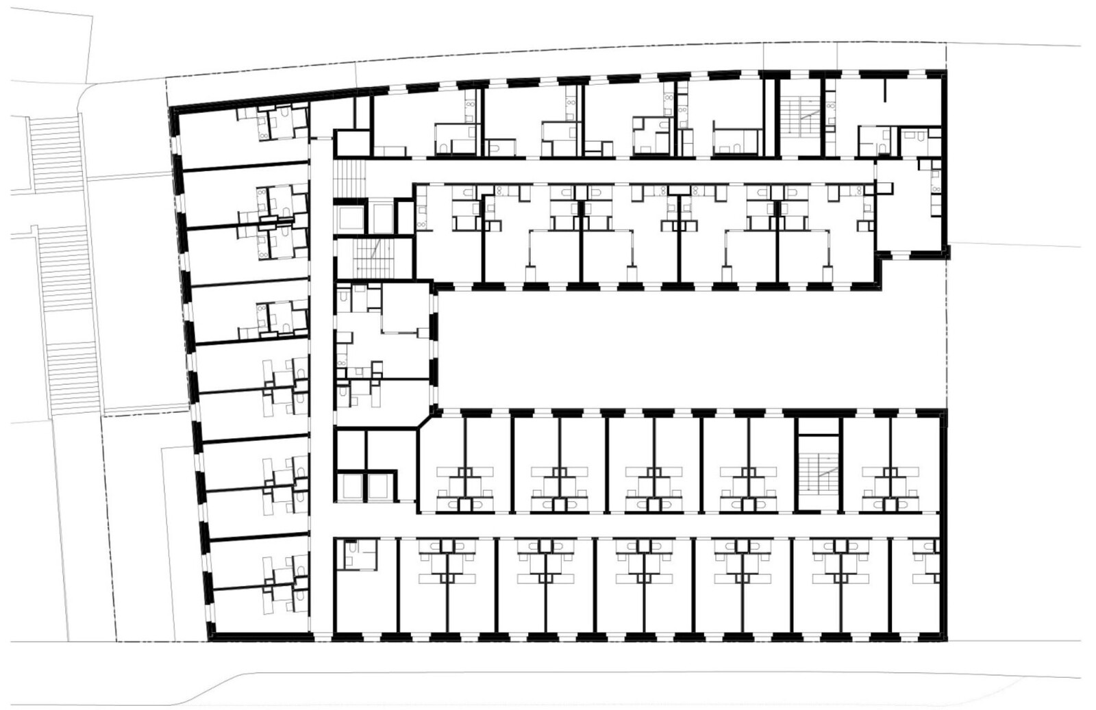
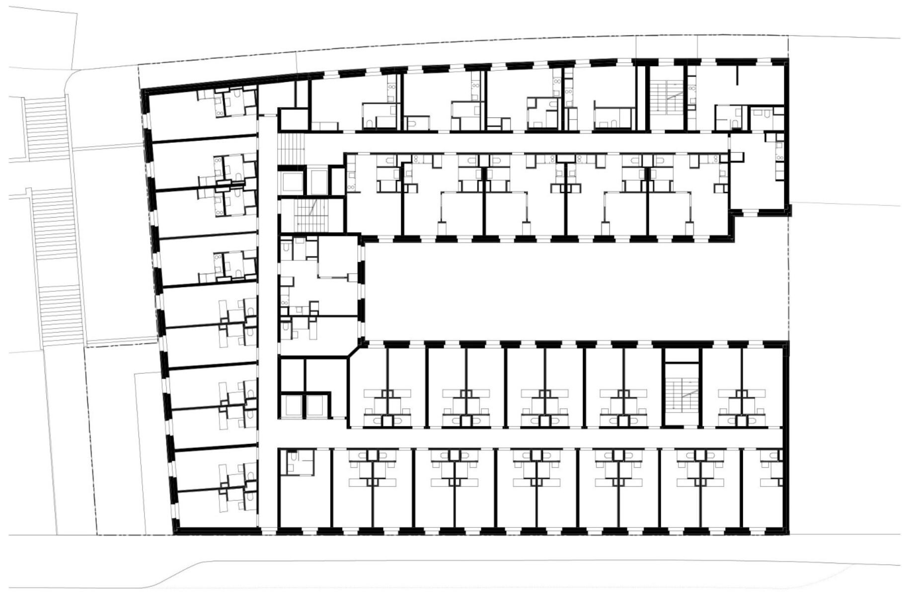
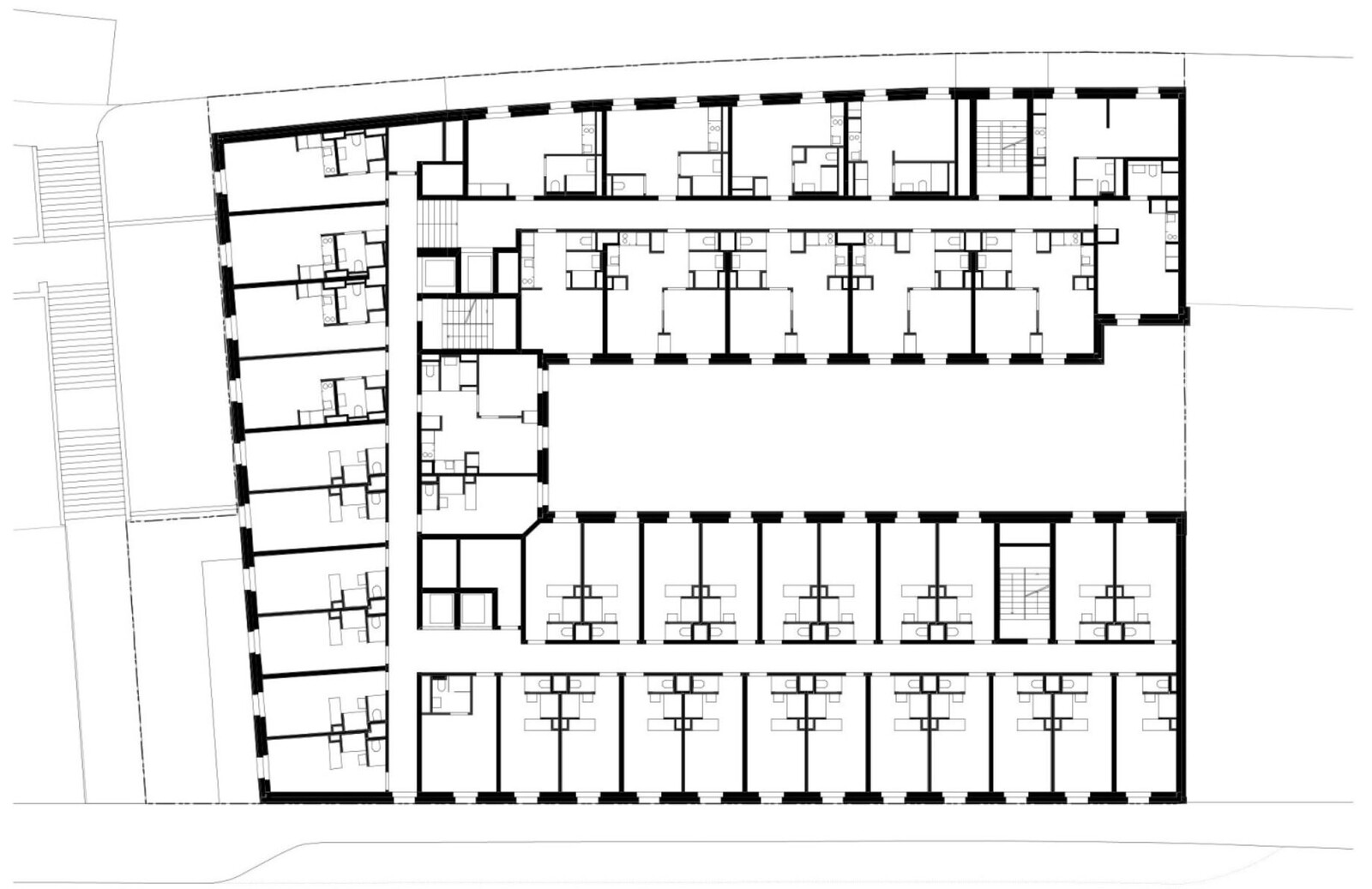
An der Stampfenbachstrasse, in unmittelbarer Nähe zum Hauptbahnhof Zürich, steht das neue Hotel BZH. Das in die Jahre gekommene, ehemalige Hotel Continental wurde durch einen modernen und zeitgemässen Neubau ersetzt. Dieser vereint die beiden Hotels «Ibis Style» und «Adagio». Die feinstrukturierte Metallfassade mit durchgehenden Lisenen sowie abgesetzten Fenstereinfassungen führt den bestehenden Blockrand weiter und verleiht dem Gebäude die nötige Eleganz und Zurückhaltung.

Auftraggeber
BZH SA, Zürich
Aufgabe
Neubau 266 Hotelzimmer
Auftragsart
Direktauftrag
Mitarbeit
Sebastian Brosig, Maria Dias, Daniel Meier, Roberto Pelizzari, Florian Ramseier, Dave Stanzione
Projektpartner
Daniel Sutter Fotografie

Projektinformation (PDF)

Durch die weitere Nutzung der Website erklären Sie sich mit der Verwendung von Cookies einverstanden. Weitere Informationen hierzu finden Sie in unserer Datenschutzrichtlinie.